





Property Description
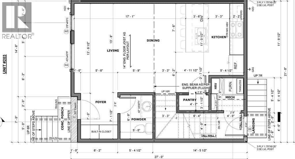
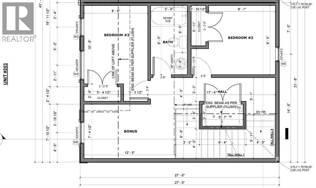
BRAND NEW END-UNIT TOWNHOME | OUTSTANDING SUNNYSIDE INNER-CITY LOCATION | 3 STOREYS ABOVE GRADE | PRIVATE PRIMARY RETREAT WITH BALCONY | BONUS ROOM + 3 BEDROOMS | OPEN-CONCEPT MAIN FLOOR | LEGAL 1-BEDROOM BASEMENT SUITE | FIRE-RATED & SOUND-SEPARATED CONSTRUCTION | Set within one of Calgary’s most sought-after inner-city neighbourhoods, this brand new end-unit townhome offers a well-considered layout, strong privacy and the added flexibility of a fully legal basement suite. Currently under construction, the home benefits from a south-facing front exposure and an end-unit position that enhances natural light while limiting shared walls. The main floor is designed around an open concept living environment where the kitchen, dining and living areas come together to create a comfortable and functional everyday space. Designed for everyday usability, the kitchen features modern appliances and generous prep and storage space, creating a practical hub for daily living and entertaining. The second level introduces 2 bedrooms, a full 4-piece bathroom, convenient upper-level laundry and a separate bonus room that adapts easily to work-from-home needs, media use or additional lounge space. Occupying the entire third level, the primary retreat is intentionally set apart and includes a walk-in closet, a lavish ensuite and a private balcony that adds both separation and lifestyle appeal. Below, the fully developed legal basement suite includes its own entrance, kitchen, living area, bedroom, full bathroom and in-suite laundry, providing excellent income potential or extended family accommodation. Built to current code with fire-rated and sound-separated assemblies and efficient mechanical systems, this home offers long-term durability and peace of mind. With immediate access to boutique shops, independent cafes, popular restaurants, the LRT station, the Bow River pathway system and downtown, the location reinforces consistent demand and an exceptional inner-city lifestyle. (id:63357)
Property Details
- Property Type
- Condo
- Bedrooms
- 4
- Bathrooms
- 3
- Half Baths
- 0
- Living Area
- 1,675 sqft
- Above Grade Area
- 1,675 sqft
- Year Built
- 2026
- Stories
- 3.0
- Status
- Active
Location & Neighborhood
Local schools, parks, transit, and amenity information is being gathered for this listing. Check back soon for detailed neighborhood insights.
Explore More in Calgary
The data relating to real estate on this website comes in part from the MLS® Reciprocity program.
REALTOR®, REALTORS®, and the REALTOR® logo are certification marks that are owned by REALTOR® Canada Inc. and licensed exclusively to The Canadian Real Estate Association (CREA). These certification marks identify real estate professionals who are members of CREA and who must abide by CREA's By-Laws, Rules, and the REALTOR® Code.
The MLS® trademark and the MLS® logo are owned by CREA and identify the quality of services provided by real estate professionals who are members of CREA.
The information contained on this site is based in whole or in part on information that is provided by members of CREA, who are responsible for its accuracy. CREA reproduces and distributes this information as a service for its members and assumes no responsibility for its accuracy.
The listing content on this website is protected by copyright and other laws. Screen scraping, database scraping, and all other forms of automated data collection are prohibited.