





Property Description
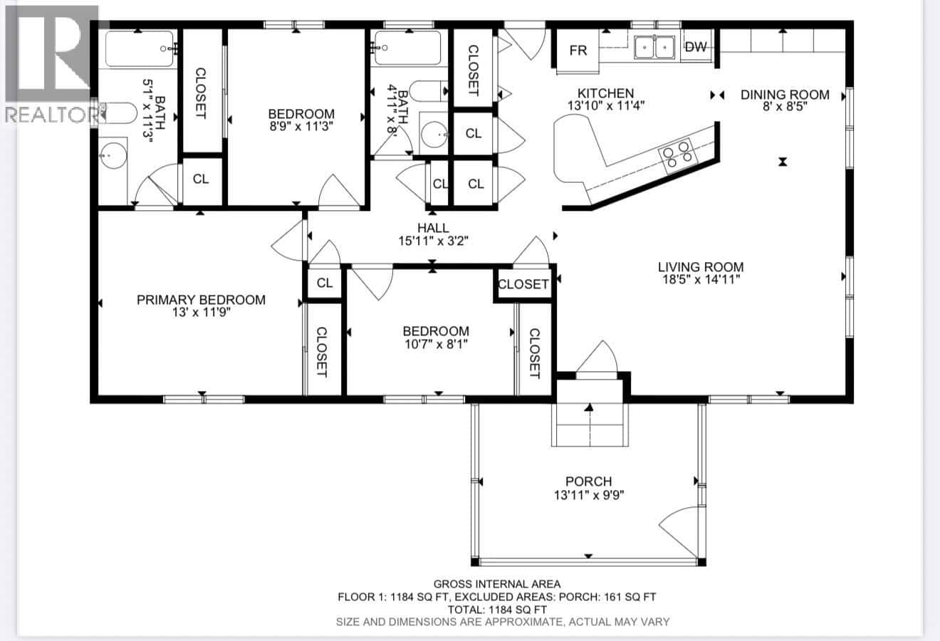
Double-wide with the updates dialed in? You found it - Welcome to Unit 34 at Diamondvale Mobile Home Park. Big, bright, and beautiful 3 bedroom, 2 bathroom Merritt home with an inviting open-concept layout, big windows, and classic built-in cabinetry that actually feels like home the moment you walk in. The kitchen brings the good vibes: generous counter space, loads of cabinets, a spacious pantry, and a fun retro feel that’s equal parts “throwback” and “why don’t new homes do this anymore?” The primary bedroom includes a private 4-piece ensuite, plus two additional bedrooms and a main bath—perfect for families, guests, or that home office you swear you’ll keep tidy. And here’s where things get serious (in a good way): the updates aren’t just cosmetic. Recent improvements include new flooring, a newer roof, new gas stove, newer windows, brand new hot water tank, new PEX plumbing, and a brand new central heating and cooling system—so you’re not inheriting someone else’s “projects,” you’re inheriting peace of mind. Outside, you’ve got a fully fenced yard built for actual living: a 10’x14’ gazebo, two storage sheds, raised garden beds, and parking for four vehicles. Pet people—this one’s for you: there’s even a dedicated Catio and YES pets (including larger dogs) are allowed! Close to schools, the local minimart, and public transit, this move-in-ready home combines comfort, charm, and a great location. Pad rent: $670 Taxes (2025, without Home Owner Grant): $778. (id:63357)
Property Details
- Property Type
- House
- Bedrooms
- 3
- Bathrooms
- 2
- Half Baths
- 0
- Living Area
- 1,152 sqft
- Year Built
- 1986
- Stories
- 1.0
- Status
- Active
Location & Neighborhood
Local schools, parks, transit, and amenity information is being gathered for this listing. Check back soon for detailed neighborhood insights.
Explore More in Merritt
The data relating to real estate on this website comes in part from the MLS® Reciprocity program.
REALTOR®, REALTORS®, and the REALTOR® logo are certification marks that are owned by REALTOR® Canada Inc. and licensed exclusively to The Canadian Real Estate Association (CREA). These certification marks identify real estate professionals who are members of CREA and who must abide by CREA's By-Laws, Rules, and the REALTOR® Code.
The MLS® trademark and the MLS® logo are owned by CREA and identify the quality of services provided by real estate professionals who are members of CREA.
The information contained on this site is based in whole or in part on information that is provided by members of CREA, who are responsible for its accuracy. CREA reproduces and distributes this information as a service for its members and assumes no responsibility for its accuracy.
The listing content on this website is protected by copyright and other laws. Screen scraping, database scraping, and all other forms of automated data collection are prohibited.