





Property Description
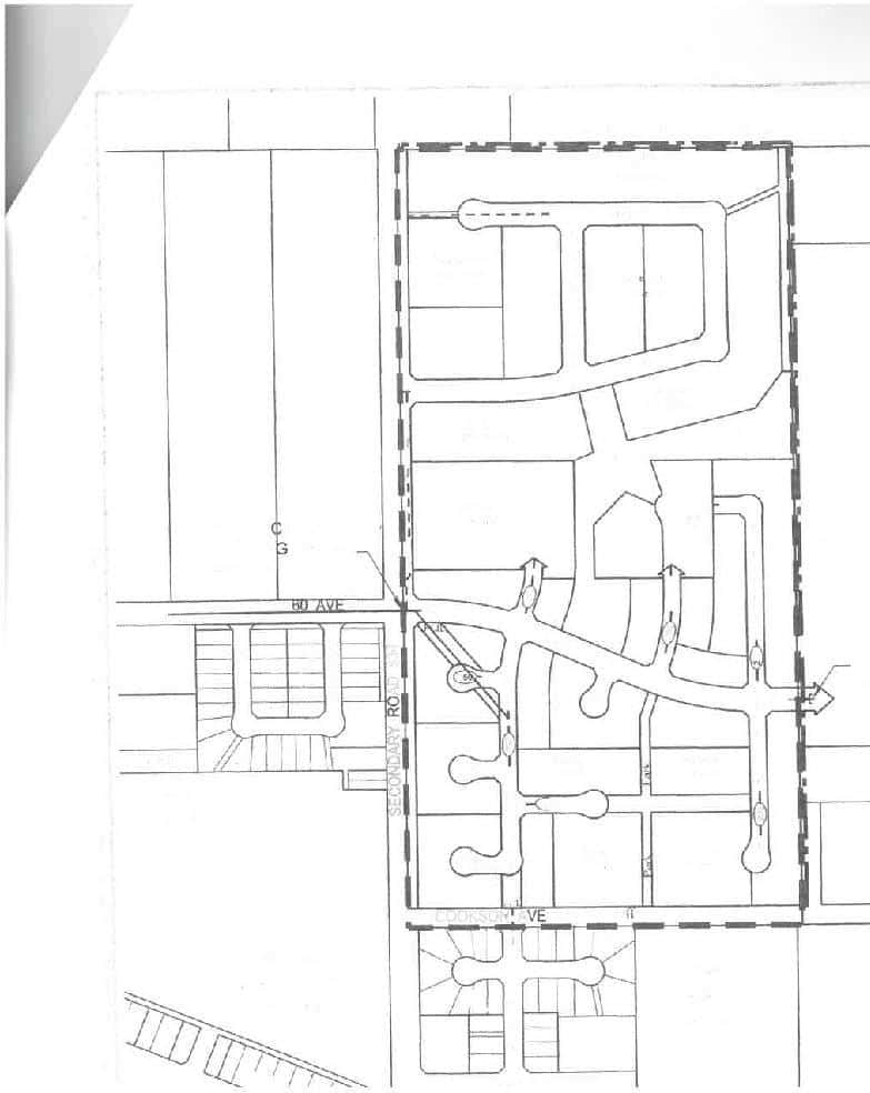
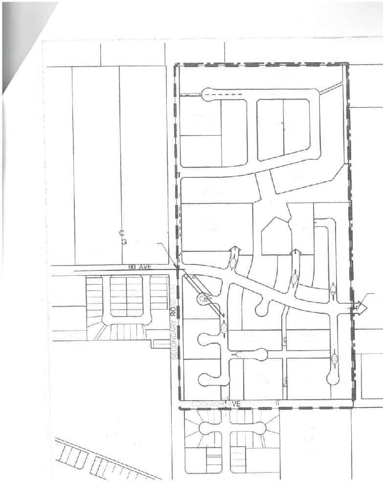
These undeveloped lands are currently leased out for hay production. Northeast Tofield ASP encourages Medium and High Density housing. Trunk sewer line exists through the SE corner of the parcel. Adequate water distribution capacity from towns existing water system according to municipality. Services by extension of electricity, natural gas, telecom and cable services present at adjacent site.Other Property Types: Commercial LandOwnership Interest: PrivateSite Services: See RemarksTitle to Land: Fee SimpleRPR Survey Available: YesSeller Rights: YesAppointment Name: Conor ClarkeAppointment Phone: 780-436-7410Paragon Listing ID: E4291723 (id:63357)
Property Details
- Property Type
- Vacant Land
- Status
- Active
Location & Neighborhood
Local schools, parks, transit, and amenity information is being gathered for this listing. Check back soon for detailed neighborhood insights.
The data relating to real estate on this website comes in part from the MLS® Reciprocity program.
REALTOR®, REALTORS®, and the REALTOR® logo are certification marks that are owned by REALTOR® Canada Inc. and licensed exclusively to The Canadian Real Estate Association (CREA). These certification marks identify real estate professionals who are members of CREA and who must abide by CREA's By-Laws, Rules, and the REALTOR® Code.
The MLS® trademark and the MLS® logo are owned by CREA and identify the quality of services provided by real estate professionals who are members of CREA.
The information contained on this site is based in whole or in part on information that is provided by members of CREA, who are responsible for its accuracy. CREA reproduces and distributes this information as a service for its members and assumes no responsibility for its accuracy.
The listing content on this website is protected by copyright and other laws. Screen scraping, database scraping, and all other forms of automated data collection are prohibited.