





Property Description
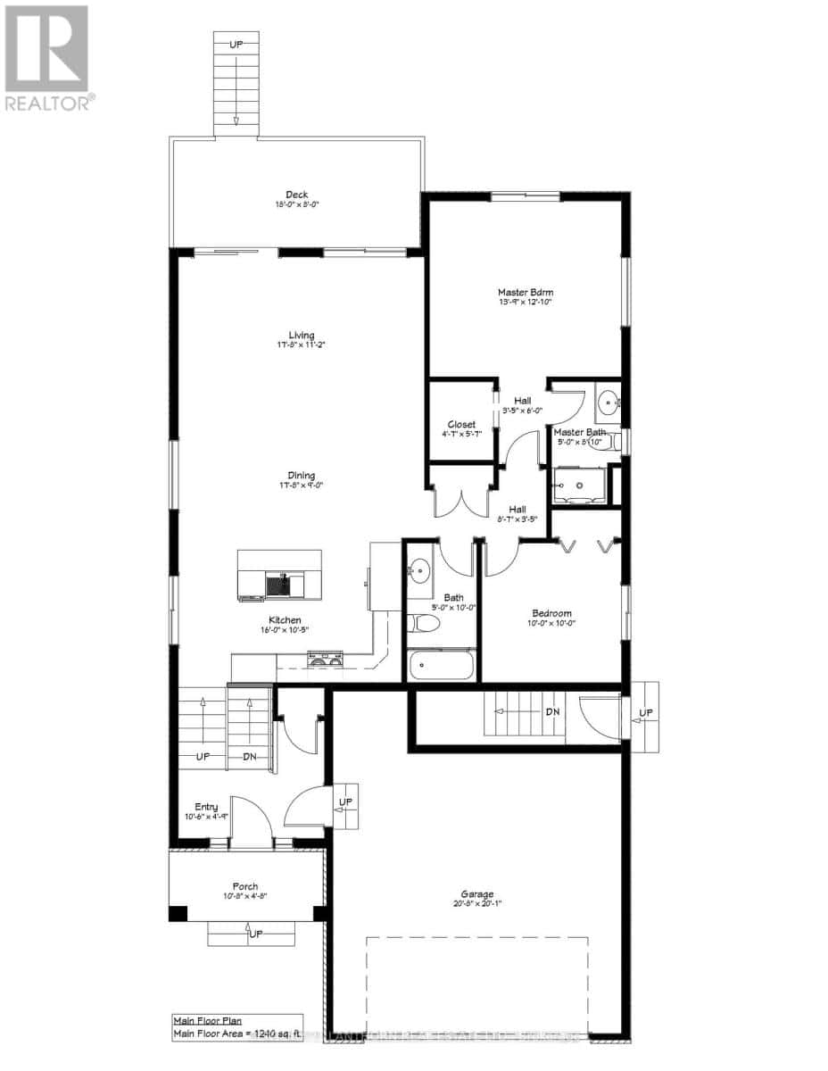
Welcome to 76 Hastings Park Drive - a rare Frontier Homes opportunity designed with multi-generational living in mind. Set in the desirable Potter's Creek community in Belleville, this thoughtfully crafted home offers two fully functional living spaces, making it ideal for extended family, blended households, or those seeking in-law capability without compromising privacy or comfort. Main Level - Bright, Open, and Beautifully Designed. Step inside from the welcoming front porch-or through the spacious, true two-car garage-and you're greeted by a warm, open-concept layout. The main floor features a sun-filled living room with seamless flow to the dining area, a stylish, well-appointed kitchen with a large center island, a generous primary bedroom with walk-in closet and private ensuite, a second comfortable bedroom and a full bathroom. This level opens to a beautiful rear deck, perfect for relaxing, barbecuing, and entertaining. Lower Level - Just as wonderful as upstairs! With its own dedicated side entrance, the lower level offers a wonderful living space-ideal for parents, adult children, or guests. This level includes a spacious living/dining area, a functional kitchenette with plenty of prep space. Two comfortable bedrooms, and a full bathroom. This well-designed layout maintains privacy while connecting seamlessly to the main floor when needed. Why This Home is Truly Special - This is more than just a house, it's a solution. Frontier Homes has created a modern, flexible floor plan that supports today's evolving family needs. Whether you're seeking true multi-generational living, a long-term guest suite, or simply more space to grow, 76 Hastings Park Drive offers unmatched versatility, quality craftsmanship, and a welcoming community setting. (id:63357)
Property Details
- Property Type
- Detached
- Bedrooms
- 4
- Bathrooms
- 3
- Stories
- 1.0
- Status
- Active
Location & Neighborhood
Local schools, parks, transit, and amenity information is being gathered for this listing. Check back soon for detailed neighborhood insights.
Explore More in Belleville (Belleville Ward)
The data relating to real estate on this website comes in part from the MLS® Reciprocity program.
REALTOR®, REALTORS®, and the REALTOR® logo are certification marks that are owned by REALTOR® Canada Inc. and licensed exclusively to The Canadian Real Estate Association (CREA). These certification marks identify real estate professionals who are members of CREA and who must abide by CREA's By-Laws, Rules, and the REALTOR® Code.
The MLS® trademark and the MLS® logo are owned by CREA and identify the quality of services provided by real estate professionals who are members of CREA.
The information contained on this site is based in whole or in part on information that is provided by members of CREA, who are responsible for its accuracy. CREA reproduces and distributes this information as a service for its members and assumes no responsibility for its accuracy.
The listing content on this website is protected by copyright and other laws. Screen scraping, database scraping, and all other forms of automated data collection are prohibited.