





Property Description
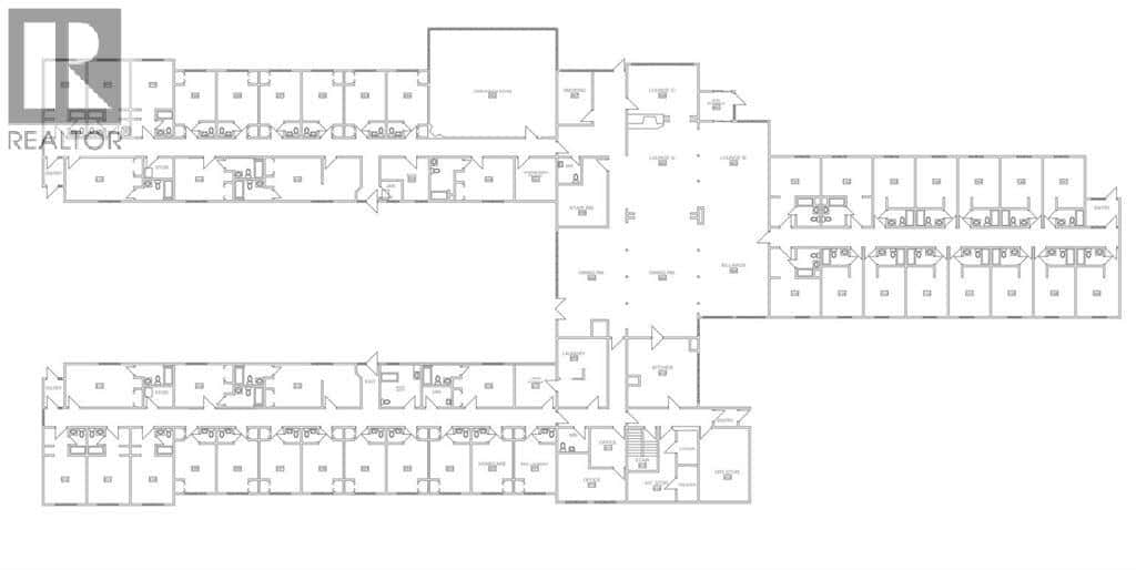
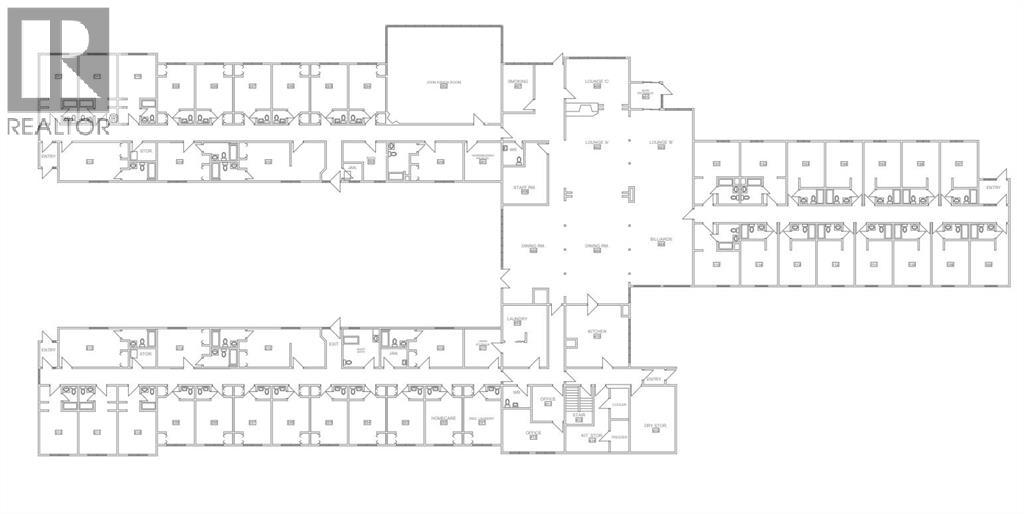
Pleasant View Lodge in Spirit River, Alberta offers multifamily investors a rare chance to acquire a large-scale residential complex with exceptional repositioning potential. Set on 2.32 acres of R4 High Density Residential land, this 42-suite, 22,177 sq. ft. facility has strong underlying infrastructure and has benefited from meaningful capital upgrades, including newer boilers (2015), hot water tanks (2022/2023), double-glazed vinyl windows, and a torch-on roof installed in 2018. The building is currently vacant, providing a clean slate for redevelopment—ideal for conversion to rental apartments, staff housing, seniors housing, or specialized accommodation. Each suite includes a private bathroom, with 26 featuring full tubs or showers. The property also includes supporting amenities such as two staff washrooms, two assisted bathing rooms, a fully equipped commercial kitchen, industrial-grade refrigeration, generous common areas, commercial laundry, office space, a dedicated hair salon, and a 26’ x 40’ maintenance shop. Situated in a quiet, park-adjacent setting with ample parking, the property is just 50 minutes from Grande Prairie and steps from local services, retail, and the Central Peace Health Centre. With strong demand for quality rental housing and workforce accommodation in Northern Alberta, Pleasant View Lodge represents a compelling opportunity to acquire a high-capacity structure with multiple income-generating pathways and significant value-add potential. (id:63357)
Property Details
- Property Type
- Detached
- Living Area
- 22,177 sqft
- Above Grade Area
- 22,177 sqft
- Year Built
- 1960
- Stories
- 1.0
- Status
- Active
Location & Neighborhood
Local schools, parks, transit, and amenity information is being gathered for this listing. Check back soon for detailed neighborhood insights.
Explore More in Spirit River
The data relating to real estate on this website comes in part from the MLS® Reciprocity program.
REALTOR®, REALTORS®, and the REALTOR® logo are certification marks that are owned by REALTOR® Canada Inc. and licensed exclusively to The Canadian Real Estate Association (CREA). These certification marks identify real estate professionals who are members of CREA and who must abide by CREA's By-Laws, Rules, and the REALTOR® Code.
The MLS® trademark and the MLS® logo are owned by CREA and identify the quality of services provided by real estate professionals who are members of CREA.
The information contained on this site is based in whole or in part on information that is provided by members of CREA, who are responsible for its accuracy. CREA reproduces and distributes this information as a service for its members and assumes no responsibility for its accuracy.
The listing content on this website is protected by copyright and other laws. Screen scraping, database scraping, and all other forms of automated data collection are prohibited.