





Property Description
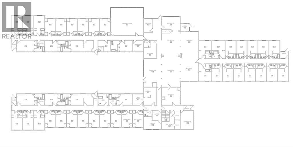
Pleasant View Lodge in Spirit River, Alberta, presents an exceptional opportunity for investors and assisted-living operators to acquire a well-maintained, institutional-quality 42-suite care facility situated on 2.32 acres of R4 High Density Residential land. This 22,177 sq. ft. building has been consistently upgraded, including newer boilers (2015), hot water tanks (2022/2023), modern double-glazed vinyl windows, and a torch-on roof completed in 2018. Now vacant and ready for redevelopment or immediate occupancy, the property features private bathrooms in every suite—26 with full showers or tubs—plus two staff washrooms, two assisted bathing rooms, a commercial kitchen with industrial equipment, extensive common areas, commercial laundry, office space, a dedicated hair salon, and a 26’x40’ maintenance shop. With ample parking, mature trees, and a peaceful setting near parks and services, and located just 50 minutes from Grande Prairie with direct access to essential amenities, this property offers exceptional potential for seniors housing, specialized care, workforce accommodation, or multi-suite residential conversion. (id:63357)
Property Details
- Property Type
- Multi-Unit
- Building Area
- 22,177 square feet
- Living Area
- 22,177 sqft
- Above Grade Area
- 22,177 sqft
- Year Built
- 1960
- Status
- Active
Location & Neighborhood
Local schools, parks, transit, and amenity information is being gathered for this listing. Check back soon for detailed neighborhood insights.
Explore More in Spirit River
The data relating to real estate on this website comes in part from the MLS® Reciprocity program.
REALTOR®, REALTORS®, and the REALTOR® logo are certification marks that are owned by REALTOR® Canada Inc. and licensed exclusively to The Canadian Real Estate Association (CREA). These certification marks identify real estate professionals who are members of CREA and who must abide by CREA's By-Laws, Rules, and the REALTOR® Code.
The MLS® trademark and the MLS® logo are owned by CREA and identify the quality of services provided by real estate professionals who are members of CREA.
The information contained on this site is based in whole or in part on information that is provided by members of CREA, who are responsible for its accuracy. CREA reproduces and distributes this information as a service for its members and assumes no responsibility for its accuracy.
The listing content on this website is protected by copyright and other laws. Screen scraping, database scraping, and all other forms of automated data collection are prohibited.