





2 7510 CURRAGH AVENUE — Burnaby, British Columbia
V5J4W2
Listed by Nu Stream Realty Inc.
About This Property
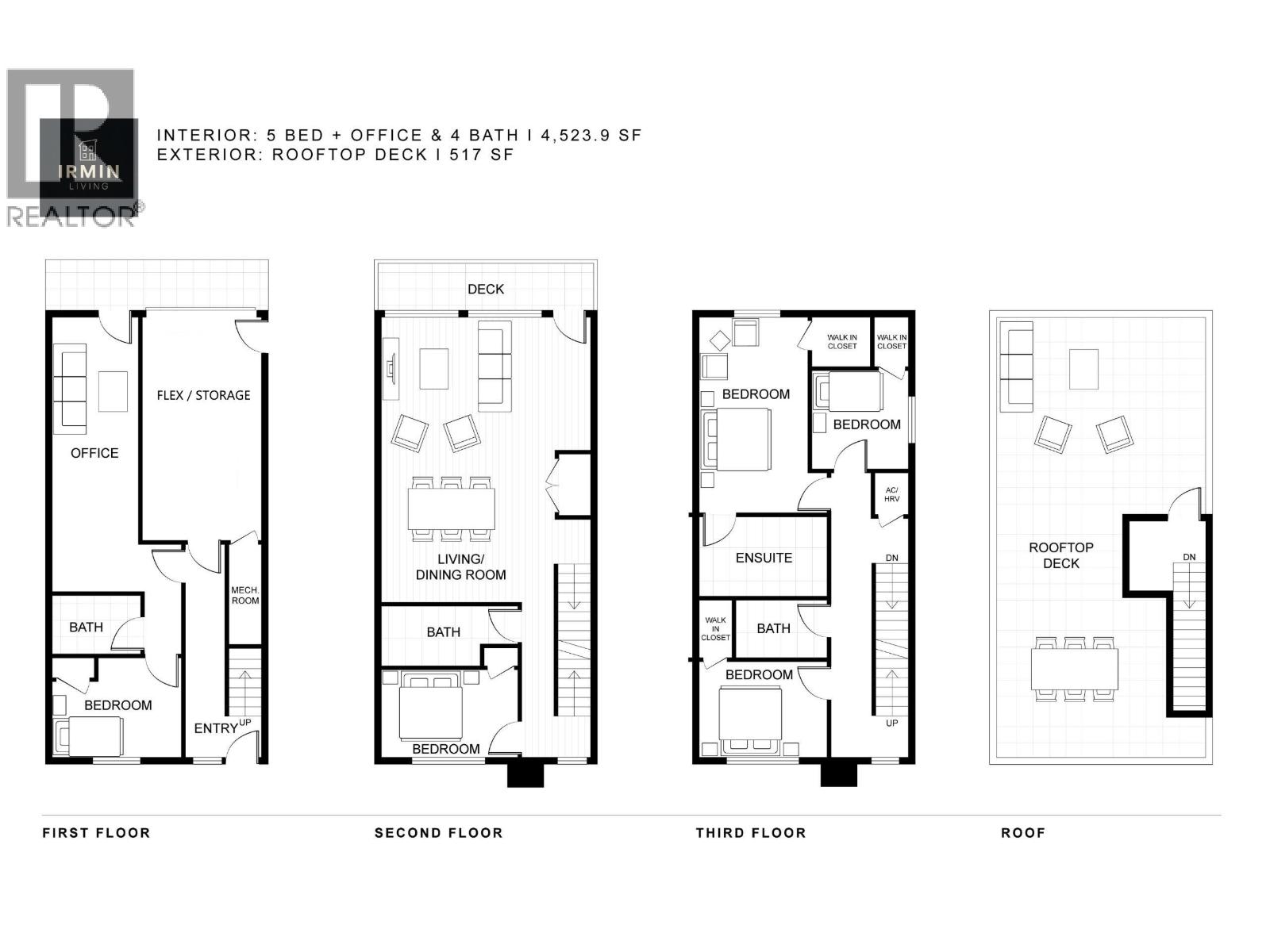
Property Details
- Property Type
- Condo
- Bedrooms
- 5
- Bathrooms
- 4
- Half Baths
- 0
- Living Area
- 2,262 sqft
- Year Built
- 2026
- Status
- Active
Location & Neighborhood
What's nearby 2 7510 CURRAGH AVENUE
Lifestyle Summary
** Living at 7510 Curragh Avenue offers a delightful lifestyle filled with convenience and community. You'll enjoy the comfort of suburban living while being just minutes away from the vibrant city life of Burnaby and Vancouver. With excellent transit options, a variety of dining choices, and abundant parks for family fun, this neighborhood truly has it all. Experience a harmonious blend of relaxation and activity in this welcoming community, where every day feels like home.
🏘️Neighborhood Vibe
** Nestled in the heart of Burnaby, this neighborhood offers a balanced blend of urban convenience and community warmth. Charming homes line the streets, while local shops and eateries create a lively yet relaxed atmosphere that welcomes both families and professionals alike. You'll find a sense of belonging here, with friendly faces and a vibrant community spirit. **COMMUTER_SUMMARY:** With easy access to multiple bus stops just a short walk from your doorstep, commuting around Burnaby and beyond is a breeze. The nearby Gilley Avenue and Clinton Street bus routes provide quick connections to key transit hubs, making it ideal for those who work in Vancouver or desire convenient access to the region. Whether heading to the office or exploring the city, your commute will be both efficient and stress-free. **FAMILY_SUMMARY:** This family-friendly neighborhood boasts a variety of nearby schools, parks, and recreational facilities, making it an ideal place for children to grow and thrive. Families will appreciate the proximity to several playgrounds and parks, fostering outdoor play and community engagement. With ample educational options and a welcoming atmosphere, this area is perfect for raising children. **DINING_ENTERTAINMENT:** Food lovers will rejoice at the eclectic dining scene just moments away, featuring an array of restaurants that cater to every palate. From the flavorful offerings at MYST Asian Fusion and Szechuan Cuisine to cozy cafes like Xing Fu Tang and CoCo Fresh Tea & Juice, there’s no shortage of culinary delights to discover. Whether you crave casual dining or a night out, the local eateries promise to satisfy your cravings. **OUTDOOR_RECREATION:** Nature enthusiasts will find themselves surrounded by beautiful parks and green spaces, perfect for leisurely strolls, picnics, or active play. Just a short distance away, Burnaby South Memorial Park and Lewarne Park provide ample opportunities for outdoor activities and family gatherings. With playgrounds and open areas nearby, outdoor recreation is easily accessible and encourages a healthy lifestyle. **OVERALL_LIFESTYLE:** Living at 7510 Curragh Avenue offers a delightful lifestyle filled with convenience and community. You'll enjoy the comfort of suburban living while being just minutes away from the vibrant city life of Burnaby and Vancouver. With excellent transit options, a variety of dining choices, and abundant parks for family fun, this neighborhood truly has it all. Experience a harmonious blend of relaxation and activity in this welcoming community, where every day feels like home.
🚗Commuting
** With easy access to multiple bus stops just a short walk from your doorstep, commuting around Burnaby and beyond is a breeze. The nearby Gilley Avenue and Clinton Street bus routes provide quick connections to key transit hubs, making it ideal for those who work in Vancouver or desire convenient access to the region. Whether heading to the office or exploring the city, your commute will be both efficient and stress-free. **FAMILY_SUMMARY:** This family-friendly neighborhood boasts a variety of nearby schools, parks, and recreational facilities, making it an ideal place for children to grow and thrive. Families will appreciate the proximity to several playgrounds and parks, fostering outdoor play and community engagement. With ample educational options and a welcoming atmosphere, this area is perfect for raising children. **DINING_ENTERTAINMENT:** Food lovers will rejoice at the eclectic dining scene just moments away, featuring an array of restaurants that cater to every palate. From the flavorful offerings at MYST Asian Fusion and Szechuan Cuisine to cozy cafes like Xing Fu Tang and CoCo Fresh Tea & Juice, there’s no shortage of culinary delights to discover. Whether you crave casual dining or a night out, the local eateries promise to satisfy your cravings. **OUTDOOR_RECREATION:** Nature enthusiasts will find themselves surrounded by beautiful parks and green spaces, perfect for leisurely strolls, picnics, or active play. Just a short distance away, Burnaby South Memorial Park and Lewarne Park provide ample opportunities for outdoor activities and family gatherings. With playgrounds and open areas nearby, outdoor recreation is easily accessible and encourages a healthy lifestyle. **OVERALL_LIFESTYLE:** Living at 7510 Curragh Avenue offers a delightful lifestyle filled with convenience and community. You'll enjoy the comfort of suburban living while being just minutes away from the vibrant city life of Burnaby and Vancouver. With excellent transit options, a variety of dining choices, and abundant parks for family fun, this neighborhood truly has it all. Experience a harmonious blend of relaxation and activity in this welcoming community, where every day feels like home.
👨👩👧👦Family Living
** This family-friendly neighborhood boasts a variety of nearby schools, parks, and recreational facilities, making it an ideal place for children to grow and thrive. Families will appreciate the proximity to several playgrounds and parks, fostering outdoor play and community engagement. With ample educational options and a welcoming atmosphere, this area is perfect for raising children. **DINING_ENTERTAINMENT:** Food lovers will rejoice at the eclectic dining scene just moments away, featuring an array of restaurants that cater to every palate. From the flavorful offerings at MYST Asian Fusion and Szechuan Cuisine to cozy cafes like Xing Fu Tang and CoCo Fresh Tea & Juice, there’s no shortage of culinary delights to discover. Whether you crave casual dining or a night out, the local eateries promise to satisfy your cravings. **OUTDOOR_RECREATION:** Nature enthusiasts will find themselves surrounded by beautiful parks and green spaces, perfect for leisurely strolls, picnics, or active play. Just a short distance away, Burnaby South Memorial Park and Lewarne Park provide ample opportunities for outdoor activities and family gatherings. With playgrounds and open areas nearby, outdoor recreation is easily accessible and encourages a healthy lifestyle. **OVERALL_LIFESTYLE:** Living at 7510 Curragh Avenue offers a delightful lifestyle filled with convenience and community. You'll enjoy the comfort of suburban living while being just minutes away from the vibrant city life of Burnaby and Vancouver. With excellent transit options, a variety of dining choices, and abundant parks for family fun, this neighborhood truly has it all. Experience a harmonious blend of relaxation and activity in this welcoming community, where every day feels like home.
🍽️Dining & Entertainment
** Food lovers will rejoice at the eclectic dining scene just moments away, featuring an array of restaurants that cater to every palate. From the flavorful offerings at MYST Asian Fusion and Szechuan Cuisine to cozy cafes like Xing Fu Tang and CoCo Fresh Tea & Juice, there’s no shortage of culinary delights to discover. Whether you crave casual dining or a night out, the local eateries promise to satisfy your cravings. **OUTDOOR_RECREATION:** Nature enthusiasts will find themselves surrounded by beautiful parks and green spaces, perfect for leisurely strolls, picnics, or active play. Just a short distance away, Burnaby South Memorial Park and Lewarne Park provide ample opportunities for outdoor activities and family gatherings. With playgrounds and open areas nearby, outdoor recreation is easily accessible and encourages a healthy lifestyle. **OVERALL_LIFESTYLE:** Living at 7510 Curragh Avenue offers a delightful lifestyle filled with convenience and community. You'll enjoy the comfort of suburban living while being just minutes away from the vibrant city life of Burnaby and Vancouver. With excellent transit options, a variety of dining choices, and abundant parks for family fun, this neighborhood truly has it all. Experience a harmonious blend of relaxation and activity in this welcoming community, where every day feels like home.
🌳Outdoor Recreation
** Nature enthusiasts will find themselves surrounded by beautiful parks and green spaces, perfect for leisurely strolls, picnics, or active play. Just a short distance away, Burnaby South Memorial Park and Lewarne Park provide ample opportunities for outdoor activities and family gatherings. With playgrounds and open areas nearby, outdoor recreation is easily accessible and encourages a healthy lifestyle. **OVERALL_LIFESTYLE:** Living at 7510 Curragh Avenue offers a delightful lifestyle filled with convenience and community. You'll enjoy the comfort of suburban living while being just minutes away from the vibrant city life of Burnaby and Vancouver. With excellent transit options, a variety of dining choices, and abundant parks for family fun, this neighborhood truly has it all. Experience a harmonious blend of relaxation and activity in this welcoming community, where every day feels like home.
Parks & Recreation
- 0.6 km
- Lewarne Park0.7 km
park
- 0.8 km
Transit Access
- Gilley Ave (SB) at Rumble St0.2 km
Bus Stop
- Rumble St (EB) at Gilley Ave0.2 km
Bus Stop
- Clinton St (WB) at Curragh Ave0.3 km
Bus Stop
- Clinton St (EB) at Curragh Ave0.3 km
Bus Stop
- Clinton St (EB) at Buller Ave0.3 km
Bus Stop
Local Amenities
Grocery
- King's Market0.5 km
Dining
- MYST Asian Fusion0.5 km
- Szechuan Cuisine0.5 km
Coffee & Cafes
- Xing Fu Tang0.6 km
- CoCo Fresh Tea & Juice0.6 km
POI data updated 1/31/2026
Burnaby Market Snapshot
1,612
Active Listings
$889K
Median Price
0
Avg Days on Market
Last updated: Nov 28, 2025
Keep Browsing
Listed by
Nu Stream Realty Inc.
REALTOR®, REALTORS®, and the REALTOR® logo are certification marks that are owned by REALTOR® Canada Inc. and licensed exclusively to The Canadian Real Estate Association (CREA). These certification marks identify real estate professionals who are members of CREA and who must abide by CREA's By-Laws, Rules, and the REALTOR® Code.
The MLS® trademark and the MLS® logo are owned by CREA and identify the quality of services provided by real estate professionals who are members of CREA.
The information contained on this site is based in whole or in part on information that is provided by members of CREA, who are responsible for its accuracy. CREA reproduces and distributes this information as a service for its members and assumes no responsibility for its accuracy.
The listing content on this website is protected by copyright and other laws. Screen scraping, database scraping, and all other forms of automated data collection are prohibited.