





Property Description
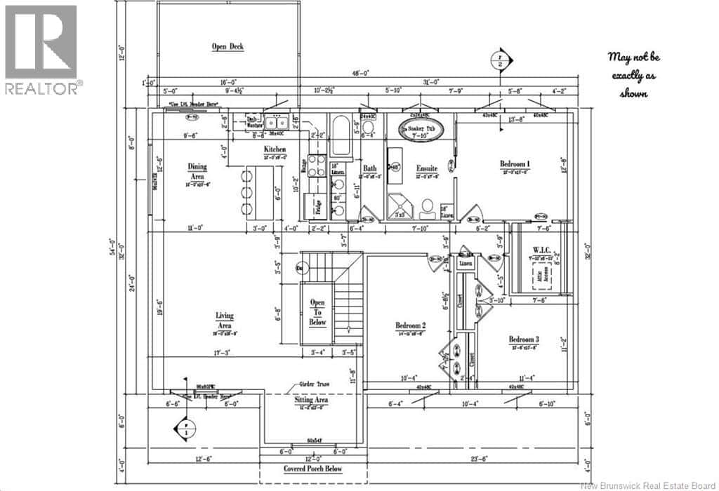
Brand-New Split-Entry Home with Garage! Welcome to this beautifully designed new build offering a modern open-concept layout and quality finishes throughout. The main level features three spacious bedrooms, including a primary suite with its own ensuite bathroom, plus a second full bath for family or guests. Enjoy the bright and inviting living area, stylish laminate flooring, and well-planned kitchen and dining space thats perfect for entertaining. The lower level includes a fourth bedroom, a cozy family room, and a third full bathroom combined with the laundry area. The attached 31 x 23 garage offers plenty of space for vehicles, storage, or a workshop. Youll love relaxing on the covered front porch or the rear deck, and the ductless heat pump provides efficient comfort year-round. This home comes with an 8-year Lux New Home Warranty, and the lot will be subdivided prior to closing. All rebates to be assigned back to the builder. Dont miss this incredible opportunity to own a brand-new home built with care and attention to detail. All measurements to be verified by the buyer. (id:63357)
Property Details
- Property Type
- Detached
- Bedrooms
- 4
- Bathrooms
- 3
- Half Baths
- 0
- Living Area
- 2,464 sqft
- Above Grade Area
- 1,608 sqft
- Year Built
- 2025
- Status
- Active
Location & Neighborhood
Local schools, parks, transit, and amenity information is being gathered for this listing. Check back soon for detailed neighborhood insights.
Explore More in Killarney Road
Listing Courtesy of
eXp Realty
The data relating to real estate on this website comes in part from the MLS® Reciprocity program.
REALTOR®, REALTORS®, and the REALTOR® logo are certification marks that are owned by REALTOR® Canada Inc. and licensed exclusively to The Canadian Real Estate Association (CREA). These certification marks identify real estate professionals who are members of CREA and who must abide by CREA's By-Laws, Rules, and the REALTOR® Code.
The MLS® trademark and the MLS® logo are owned by CREA and identify the quality of services provided by real estate professionals who are members of CREA.
The information contained on this site is based in whole or in part on information that is provided by members of CREA, who are responsible for its accuracy. CREA reproduces and distributes this information as a service for its members and assumes no responsibility for its accuracy.
The listing content on this website is protected by copyright and other laws. Screen scraping, database scraping, and all other forms of automated data collection are prohibited.