





3071 Dumont WAY — Regina, Saskatchewan
S4V3Z5
Listed by Royal LePage Next Level
About This Property
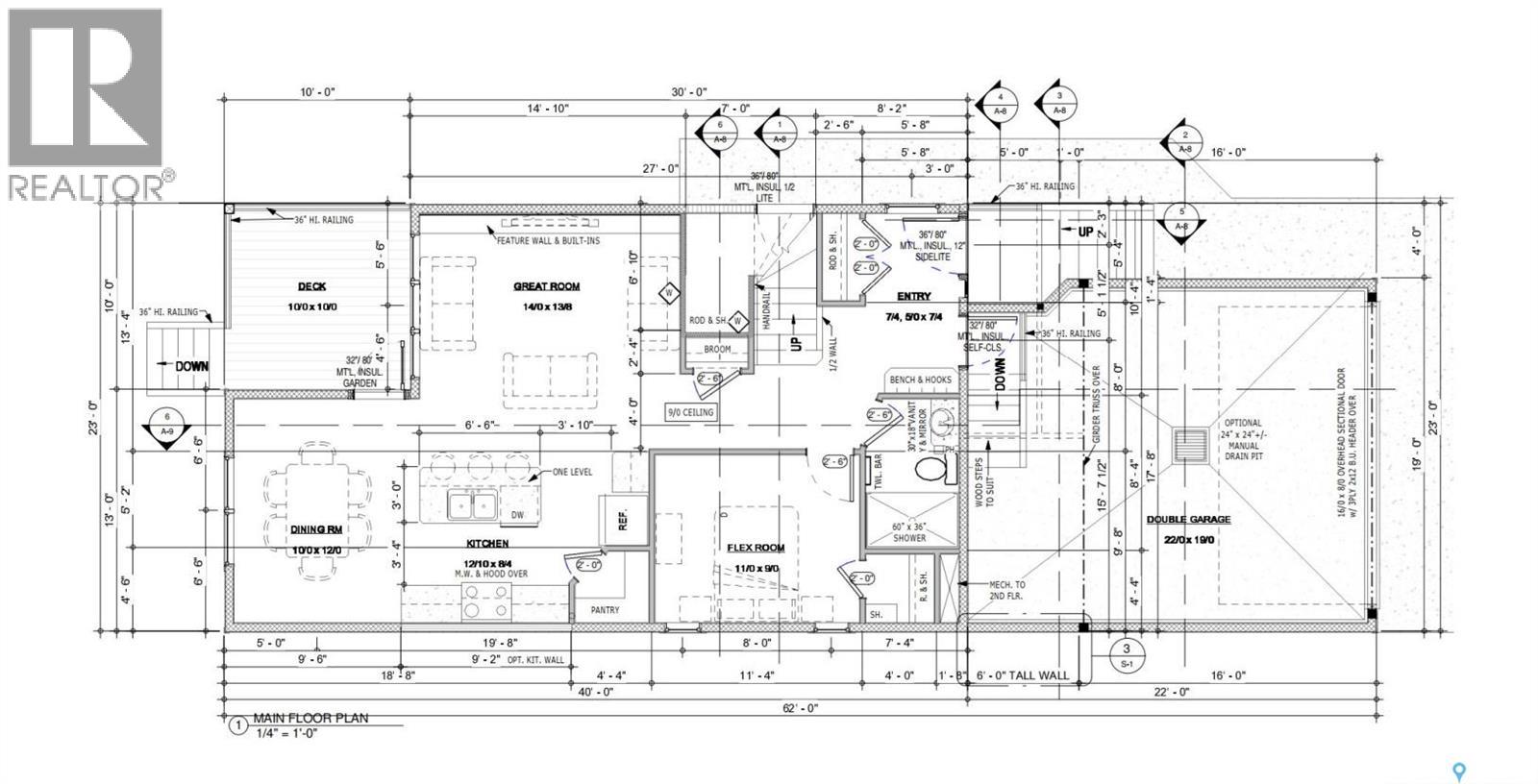
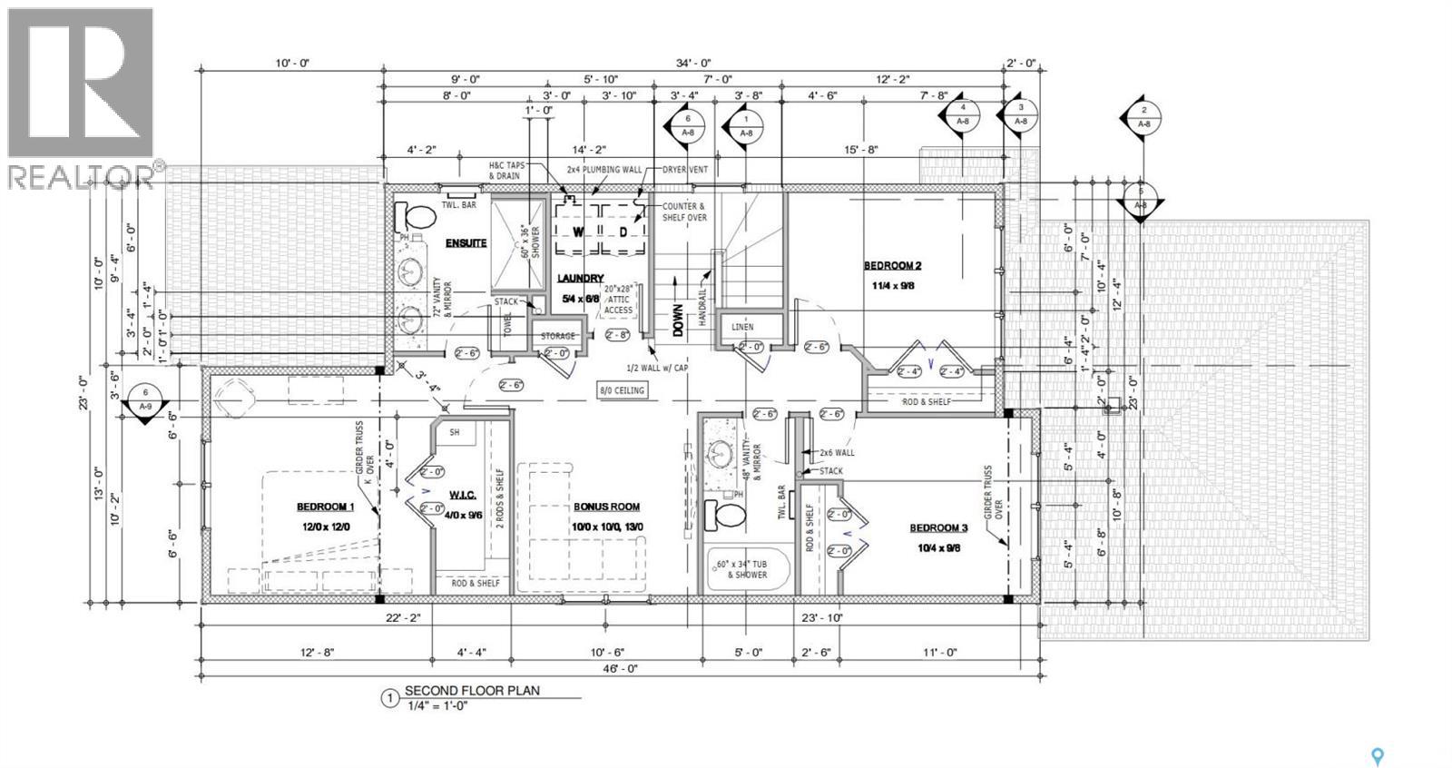
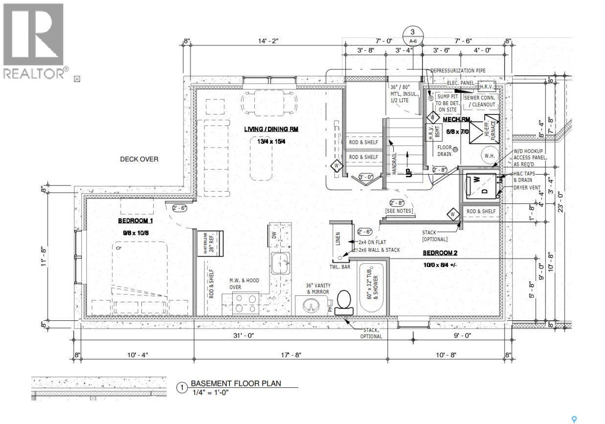
Property Details
- Property Type
- Detached
- Bedrooms
- 6
- Bathrooms
- 4
- Living Area
- 1,753 sqft
- Year Built
- 2025
- Stories
- 2.0
- Status
- Active
Location & Neighborhood
What's nearby 3071 Dumont WAY
Lifestyle Summary
At 3071 Dumont Way, your daily routine is effortlessly streamlined, particularly if you rely on public transport. A quick 5-minute stroll brings you to Windsor Park Road @ Buckingham Drive, where you can hop on the bus for easy access to Regina's bustling areas or connect to other parts of the city. The close proximity to multiple transit stops ensures that whether you’re commuting to work or heading out for a night on the town, you can ditch the car and enjoy a stress-free ride. For families, this residence is perfectly situated near some of Regina's most reputable schools. St. Gabriel School and Jack MacKenzie Elementary School are both just a 5-minute walk away, making drop-offs and pick-ups a breeze. This kind of accessibility allows parents to spend more time with their children instead of navigating traffic. The nearby School, a mere 6 minutes on foot, adds another layer of educational convenience for families with varying age groups. When it’s time to unwind, you’ll find several parks within walking distance. Horizon Station Park is only a 5-minute walk, providing a delightful space for family picnics or evening strolls with your pets. If you're feeling adventurous, head over to Kiswehap Park or Prince William Park, both about 8-9 minutes away, where you can enjoy nature trails or playgrounds with the kids. These green spaces serve as an extension of your backyard, offering an outdoor sanctuary for relaxation and recreation. Dining out is equally convenient, with The Everyday Kitchen just a 2-minute walk from your doorstep. Imagine starting your day with a hearty breakfast or unwinding after work with a comforting meal without the hassle of long commutes. Although shopping options are sparse within 800 meters, the local dining scene compensates with its quick accessibility, ensuring that your culinary cravings can be satisfied in mere moments. Living at 3071 Dumont Way means embracing a lifestyle that prioritizes ease and community connections, allowing you to focus on what truly matters—family and quality of life.
Nearby Schools
- St. Gabriel School0.4 km
school
- 0.4 km
- School0.5 km
school
Parks & Recreation
- 0.4 km
- Kiswehap Park0.6 km
park
- Park0.6 km
park
Transit Access
- Windsor Park Road @ Buckingham Drive0.4 km
Transit • 1503
- Windsor Park Road @ Cranbourn Crescent0.4 km
Transit • 1508
- Windsor Park Road @ Sunninghill Crescent0.5 km
Transit • 1507
- Buckingham Drive @ Windsor Park Road0.5 km
Transit • 1622
- Primrose Green Drive @ Green Brook Road0.6 km
Transit • 1630
Local Amenities
Dining
- The Everyday Kitchen0.1 km
POI data updated recently
Regina Market Snapshot
596
Active Listings
$280K
Median Price
0
Avg Days on Market
Last updated: Mar 5, 2026
Keep Browsing
Listed by
Royal LePage Next Level
REALTOR®, REALTORS®, and the REALTOR® logo are certification marks that are owned by REALTOR® Canada Inc. and licensed exclusively to The Canadian Real Estate Association (CREA). These certification marks identify real estate professionals who are members of CREA and who must abide by CREA's By-Laws, Rules, and the REALTOR® Code.
The MLS® trademark and the MLS® logo are owned by CREA and identify the quality of services provided by real estate professionals who are members of CREA.
The information contained on this site is based in whole or in part on information that is provided by members of CREA, who are responsible for its accuracy. CREA reproduces and distributes this information as a service for its members and assumes no responsibility for its accuracy.
The listing content on this website is protected by copyright and other laws. Screen scraping, database scraping, and all other forms of automated data collection are prohibited.