





Property Description
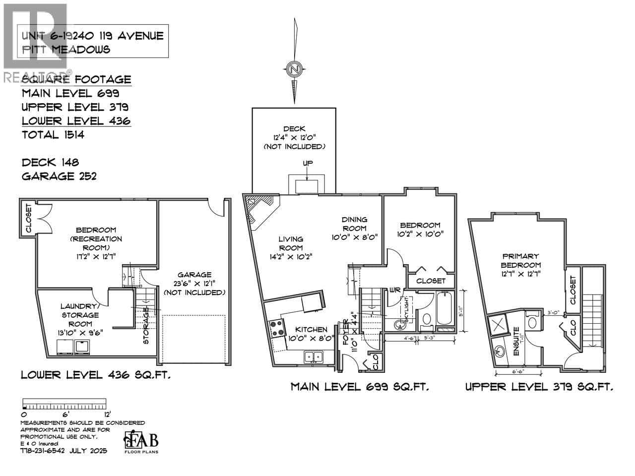
This 1,514 square ft townhouse in Central Meadows offers a bright, open layout with two spacious bedrooms, two full bathrooms, and a fully finished basement, all in a quiet, convenient location. The main floor opens to a private, fully fenced yard with a patio and side yard-ideal for relaxing or entertaining. The primary bedroom easily fits king-sized furniture and includes a walk-through closet that leads to a full ensuite. Downstairs, the finished basement features a versatile rec or family room and a separate laundry area. Just a 10-minute walk to Pitt Meadows Secondary and only 1/8 of a block from Pitt Meadows Elementary, this home is also within three blocks of the rec center, community policing, shopping, two local pubs, and the W.C.E. tks (id:63357)
Property Details
- Property Type
- Condo
- Bedrooms
- 3
- Bathrooms
- 2
- Living Area
- 1,514 sqft
- Year Built
- 1990
- Status
- Active
Location & Neighborhood
Local schools, parks, transit, and amenity information is being gathered for this listing. Check back soon for detailed neighborhood insights.
Explore More in Pitt Meadows
The data relating to real estate on this website comes in part from the MLS® Reciprocity program.
REALTOR®, REALTORS®, and the REALTOR® logo are certification marks that are owned by REALTOR® Canada Inc. and licensed exclusively to The Canadian Real Estate Association (CREA). These certification marks identify real estate professionals who are members of CREA and who must abide by CREA's By-Laws, Rules, and the REALTOR® Code.
The MLS® trademark and the MLS® logo are owned by CREA and identify the quality of services provided by real estate professionals who are members of CREA.
The information contained on this site is based in whole or in part on information that is provided by members of CREA, who are responsible for its accuracy. CREA reproduces and distributes this information as a service for its members and assumes no responsibility for its accuracy.
The listing content on this website is protected by copyright and other laws. Screen scraping, database scraping, and all other forms of automated data collection are prohibited.