





Property Description
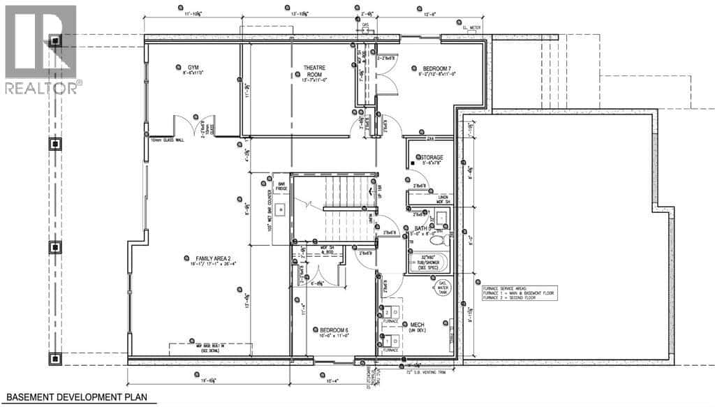
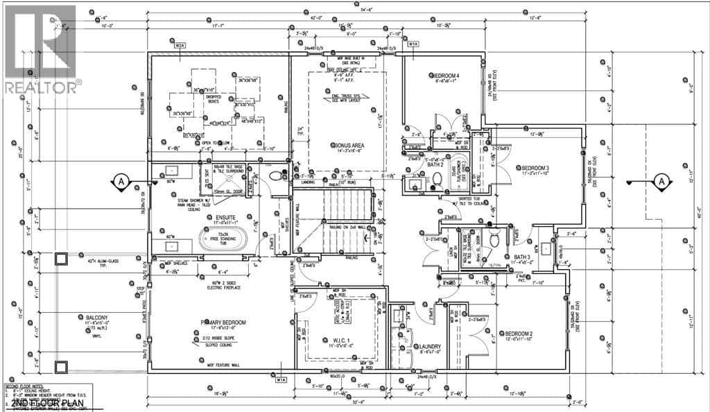
This home is currently under construction. Photos are for representation purposes only and are not of the actual property. Finishes, features, and specifications may vary.Step into Sunset Ridge with this exceptional 7-bedroom, 5-bathroom residence offering approximately 3,400 sq. ft. of luxurious living space. Built by Green Cedar Homes, this impressive property showcases thoughtful design, premium finishes, and a fully developed walk-out basement, delivering an ideal blend of elegance and functionality for modern family living.The striking exterior, paired with a triple attached garage, creates strong curb appeal. Inside, the bright open-concept main floor is perfectly suited for both entertaining and everyday living. The chef-inspired kitchen anchors the home, featuring premium finishes, a statement central island, and seamless flow into the dining and living areas. Additional flexible spaces allow for a formal dining area, home office, or playroom—easily tailored to your lifestyle.Upstairs, the primary suite offers a private retreat complete with a spa-inspired ensuite, including dual vanities, a freestanding soaking tub, an oversized shower, and a spacious walk-in closet. Five additional bedrooms, full bathrooms, and a large bonus room provide exceptional space and comfort for families of all sizes.The fully developed walk-out basement is a true highlight, featuring a theater room, recreation area, wet bar, and an additional bedroom—ideal for entertaining, extended family, or guests. Large windows and direct backyard access flood the space with natural light, making it both inviting and functional.Situated in the highly desirable Sunset Ridge community, residents enjoy scenic walking trails, parks, playgrounds, schools, and stunning Rocky Mountain views, all just minutes from the amenities of Cochrane. (id:63357)
Property Details
- Property Type
- Detached
- Bedrooms
- 7
- Bathrooms
- 5
- Half Baths
- 0
- Living Area
- 3,402 sqft
- Above Grade Area
- 3,402 sqft
- Year Built
- 2025
- Stories
- 2.0
- Status
- Active
Location & Neighborhood
Local schools, parks, transit, and amenity information is being gathered for this listing. Check back soon for detailed neighborhood insights.
Explore More in Cochrane
The data relating to real estate on this website comes in part from the MLS® Reciprocity program.
REALTOR®, REALTORS®, and the REALTOR® logo are certification marks that are owned by REALTOR® Canada Inc. and licensed exclusively to The Canadian Real Estate Association (CREA). These certification marks identify real estate professionals who are members of CREA and who must abide by CREA's By-Laws, Rules, and the REALTOR® Code.
The MLS® trademark and the MLS® logo are owned by CREA and identify the quality of services provided by real estate professionals who are members of CREA.
The information contained on this site is based in whole or in part on information that is provided by members of CREA, who are responsible for its accuracy. CREA reproduces and distributes this information as a service for its members and assumes no responsibility for its accuracy.
The listing content on this website is protected by copyright and other laws. Screen scraping, database scraping, and all other forms of automated data collection are prohibited.