





Property Description
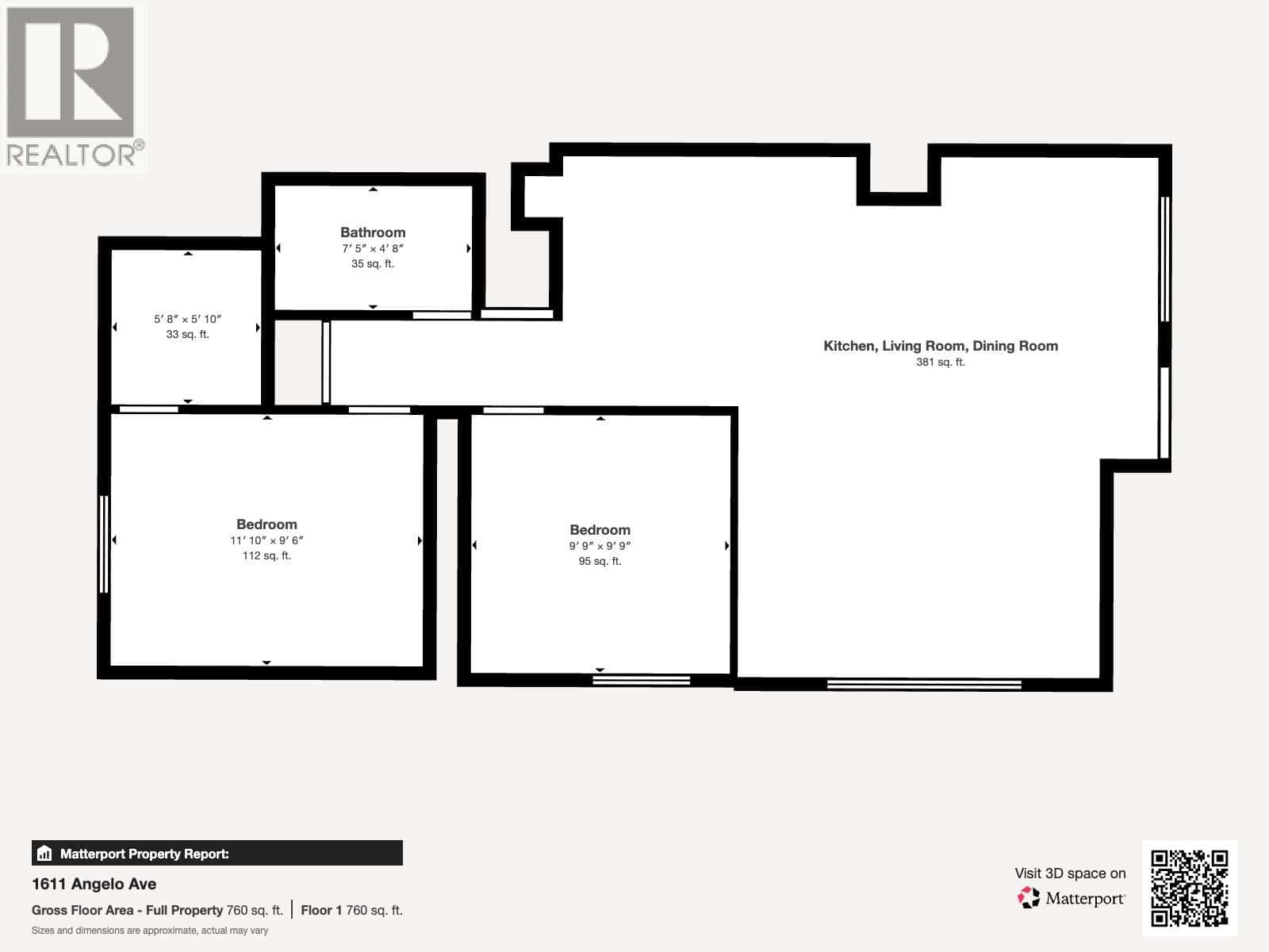
To book a showing, please reply to this post or call Bria at 778-949-4499. Spacious 2-bedroom basement suite in Port Coquitlam offering approx. 980 sq.ft. of comfortable living on a quiet residential street. Features two well-separated bedrooms, a large open-concept kitchen/living/dining area, one full bathroom, private entrance, and a bright, functional layout. Utilities are included for easy budgeting. Ideal for professionals, couples, or a small family seeking space and value. Minimum 1-year lease, no smoking, pets subject to approval, tenant insurance required. Presented by Randal Kung Personal Real Estate Corporation | RE/MAX Crest Realty. (id:63357)
Property Details
- Bedrooms
- 2
- Bathrooms
- 1
- Living Area
- 980 sqft
- Status
- Active
Location & Neighborhood
Local schools, parks, transit, and amenity information is being gathered for this listing. Check back soon for detailed neighborhood insights.
The data relating to real estate on this website comes in part from the MLS® Reciprocity program.
REALTOR®, REALTORS®, and the REALTOR® logo are certification marks that are owned by REALTOR® Canada Inc. and licensed exclusively to The Canadian Real Estate Association (CREA). These certification marks identify real estate professionals who are members of CREA and who must abide by CREA's By-Laws, Rules, and the REALTOR® Code.
The MLS® trademark and the MLS® logo are owned by CREA and identify the quality of services provided by real estate professionals who are members of CREA.
The information contained on this site is based in whole or in part on information that is provided by members of CREA, who are responsible for its accuracy. CREA reproduces and distributes this information as a service for its members and assumes no responsibility for its accuracy.
The listing content on this website is protected by copyright and other laws. Screen scraping, database scraping, and all other forms of automated data collection are prohibited.