





Property Description
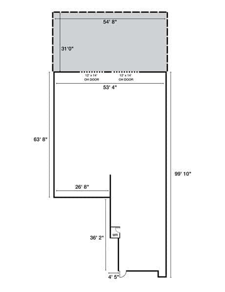
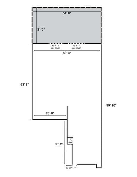
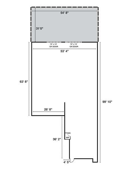
4,100 sq.ft.± retail/warehouse bay available for lease at 6817 – 104 Street in Edmonton. The space includes two 12’ x 14’ grade loading doors, 18’ ceiling height, an air make-up system, and a fenced 1,695 sq.ft.± yard. The site offers exposure to 22,042 vehicles per day (2023 City of Edmonton – 104 Street north of 65 Avenue) with DC1 zoning. Parking includes street stalls in front and scramble parking to the north and south of the building.Other Property Types: Industrial,RetailSubject Space Width: 54Ownership Interest: PrivateTitle to Land: LeaseholdRPR Survey Available: NoSeller Rights: NoAppointment Name: Conor ClarkeAppointment Phone: 780-720-7352Lease Operating Costs Included: Common area maintenance, property taxes, building insurance & UtilitiesParagon Listing ID: E4454918 (id:63357)
Property Details
- Living Area
- 4,100 sqft
- Year Built
- 1978
- Status
- Active
Location & Neighborhood
Local schools, parks, transit, and amenity information is being gathered for this listing. Check back soon for detailed neighborhood insights.
The data relating to real estate on this website comes in part from the MLS® Reciprocity program.
REALTOR®, REALTORS®, and the REALTOR® logo are certification marks that are owned by REALTOR® Canada Inc. and licensed exclusively to The Canadian Real Estate Association (CREA). These certification marks identify real estate professionals who are members of CREA and who must abide by CREA's By-Laws, Rules, and the REALTOR® Code.
The MLS® trademark and the MLS® logo are owned by CREA and identify the quality of services provided by real estate professionals who are members of CREA.
The information contained on this site is based in whole or in part on information that is provided by members of CREA, who are responsible for its accuracy. CREA reproduces and distributes this information as a service for its members and assumes no responsibility for its accuracy.
The listing content on this website is protected by copyright and other laws. Screen scraping, database scraping, and all other forms of automated data collection are prohibited.