





Property Description
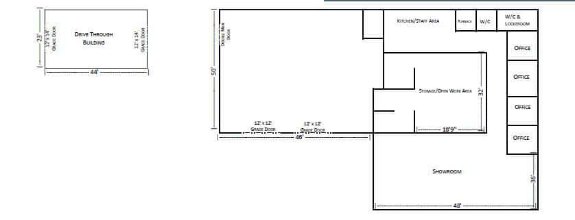
8,612 sq.ft.± freestanding showroom/warehouse building available for lease on a 2.11-acre± site at 14820 – 123 Avenue in Edmonton. The site includes a 1,012 sq.ft.± drive-through building and features two grade loading doors, trench drain, and 400 amp power (TBC). The main building layout includes a showroom, four offices, kitchen/staff area, storage, and open workspace on both levels. Zoned BE (Business Employment) with exposure to 25,000 vehicles per day on 149 Street.Other Property Types: IndustrialOwnership Interest: PrivateSeller Rights: NoAppointment Name: Ryan BrownAppointment Phone: 780-964-8624Lease Operating Costs Included: Common area maintenance, building insurance, and management fees. Does not include property taxes.Paragon Listing ID: E4440623 (id:63357)
Property Details
- Living Area
- 8,612 sqft
- Year Built
- 1968
- Status
- Active
Location & Neighborhood
Local schools, parks, transit, and amenity information is being gathered for this listing. Check back soon for detailed neighborhood insights.
The data relating to real estate on this website comes in part from the MLS® Reciprocity program.
REALTOR®, REALTORS®, and the REALTOR® logo are certification marks that are owned by REALTOR® Canada Inc. and licensed exclusively to The Canadian Real Estate Association (CREA). These certification marks identify real estate professionals who are members of CREA and who must abide by CREA's By-Laws, Rules, and the REALTOR® Code.
The MLS® trademark and the MLS® logo are owned by CREA and identify the quality of services provided by real estate professionals who are members of CREA.
The information contained on this site is based in whole or in part on information that is provided by members of CREA, who are responsible for its accuracy. CREA reproduces and distributes this information as a service for its members and assumes no responsibility for its accuracy.
The listing content on this website is protected by copyright and other laws. Screen scraping, database scraping, and all other forms of automated data collection are prohibited.