





Property Description
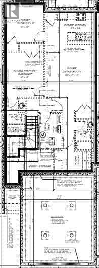
Welcome to 306 George Street! Discover exceptional quality and modern living in this brand-new bungalow duplex in the heart of Diamond Valley, scheduled for completion in 2026—and best of all, NO HOA or condo fees! Step inside to a spacious front entryway that sets the tone for the thoughtful design throughout. The main floor features a large laundry room and an impressive chef-inspired kitchen with vaulted ceilings, ceiling-height cabinetry, and a massive island perfect for cooking, entertaining, and gathering.This home offers 2 well-appointed bedrooms, including a stunning primary suite complete with a 3-piece ensuite and an expansive walk-in closet with custom organizers. A separate side entrance leads to the basement, which is roughed in for a future legal suite—ideal for added income or extended family living.Hurry—buyers who secure their home within the next 60 days can select their own custom interior palette and personalize the finishes to match their style. A rare opportunity to own a high-quality new build with flexibility, convenience, and modern comfort! (id:63357)
Property Details
- Property Type
- Detached
- Bedrooms
- 2
- Bathrooms
- 2
- Half Baths
- 0
- Living Area
- 1,158 sqft
- Above Grade Area
- 1,158 sqft
- Year Built
- 2026
- Stories
- 1.0
- Status
- Active
Location & Neighborhood
Explore what's nearby 306 George Street Street SW
Explore More in Diamond Valley
Listing Courtesy of
Century 21 Foothills Real Estate
The data relating to real estate on this website comes in part from the MLS® Reciprocity program.
REALTOR®, REALTORS®, and the REALTOR® logo are certification marks that are owned by REALTOR® Canada Inc. and licensed exclusively to The Canadian Real Estate Association (CREA). These certification marks identify real estate professionals who are members of CREA and who must abide by CREA's By-Laws, Rules, and the REALTOR® Code.
The MLS® trademark and the MLS® logo are owned by CREA and identify the quality of services provided by real estate professionals who are members of CREA.
The information contained on this site is based in whole or in part on information that is provided by members of CREA, who are responsible for its accuracy. CREA reproduces and distributes this information as a service for its members and assumes no responsibility for its accuracy.
The listing content on this website is protected by copyright and other laws. Screen scraping, database scraping, and all other forms of automated data collection are prohibited.