55 RIDGE ROAD E — Grimsby (Grimsby Escarpment), Ontario

$499,000
Baths:0Type:LandPostal:L3M4E7
55 RIDGE ROAD E — Grimsby (Grimsby Escarpment), Ontario - Photo 1 of 5
1 / 5

Property Description

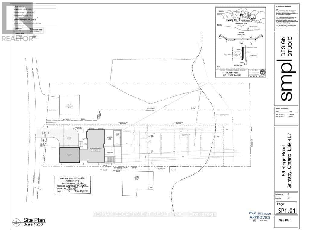
Welcome to 55 Ridge Road East, Grimsby - a rare and remarkable opportunity to build your dream home on a breathtaking lot perched on the sought-after Ridge Road, overlooking the Niagara Escarpment. Through the forest take in the serene views of Lake Ontario, CN Tower, Toronto skyline, and downtown Grimsby. The Seller is motivated. On the adjacent property the NEC has granted a permit for a custom 3,600+ sq ft modern home. That site plan provides room for a pool and an area to create a backyard oasis. The same could be done on this property. The lot backs onto mature trees and the Bruce Trail, with no front or rear neighbours - offering total privacy and serenity just minutes from the downtown core. Hydro, natural gas, and cable are at the road. This is a builder's or end-user's dream-perfect for those looking to create a one-of-a-kind residence on the ridge in one of Grimsby's most coveted locations. Whether you're an investor, developer, or someone ready to build a forever home surrounded by nature, this offering delivers unmatched value. Enjoy country-like living just minutes from the QEW, future Grimsby GO Station, schools, marinas, vineyards, shops, and the hospital. With sweeping views this is an extraordinary opportunity not to be missed. (id:63357)

Property Details

Property Type
Land
Bathrooms
0
Status
Active

Location & Neighborhood

Explore what's nearby 55 RIDGE ROAD E

Nearby Schools

(1)
  • Nelles Public School

    School
    0.5 km

School information provided for reference. Visit official school board websites for details.

Parks & Recreation

(1)
  • Centennial Park

    Park
    0.5 km
POI data updated recently

Explore More in Grimsby (Grimsby Escarpment)

Listing Courtesy of

RE/MAX ESCARPMENT REALTY INC.

The data relating to real estate on this website comes in part from the MLS® Reciprocity program.

REALTOR®, REALTORS®, and the REALTOR® logo are certification marks that are owned by REALTOR® Canada Inc. and licensed exclusively to The Canadian Real Estate Association (CREA). These certification marks identify real estate professionals who are members of CREA and who must abide by CREA's By-Laws, Rules, and the REALTOR® Code.

The MLS® trademark and the MLS® logo are owned by CREA and identify the quality of services provided by real estate professionals who are members of CREA.

The information contained on this site is based in whole or in part on information that is provided by members of CREA, who are responsible for its accuracy. CREA reproduces and distributes this information as a service for its members and assumes no responsibility for its accuracy.

The listing content on this website is protected by copyright and other laws. Screen scraping, database scraping, and all other forms of automated data collection are prohibited.

$499,000