





Property Description
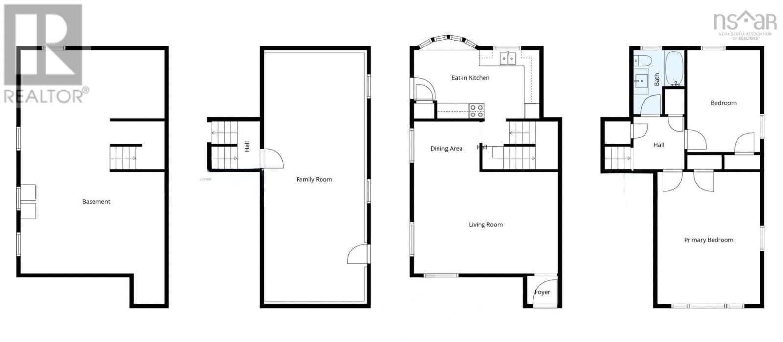
Welcome to your future dream home! This charming house in Stellarton presents a unique opportunity with its two bedrooms that can easily be converted into a three bedroom layout. The property has undergone numerous major updates, including the installation of five new heat pumps this year, along with newer windows, seamless gutters, a deck, steps, and more. The list of upgrades is extensive, showcasing a commitment to modernization and quality. The ground floor features a massive family room with outside access, offering endless possibilities for utilization. The spacious primary bedroom is designed to capture ample natural light, creating a bright and inviting atmosphere. Electrical upgrades have been completed, featuring a new 200 amp breaker panel to ensure safety and efficiency. The addition of new heat pumps provides exceptional climate control and air-conditioning during the summer months, complemented by extra blown-in insulation for enhanced energy efficiency. This upgraded home offers a blend of comfort and functionality, making it a wise investment for the discerning buyer. Don't miss out on this affordable opportunity to own a beautifully renovated home with limitless potential. Act swiftly as BLINK! and it could be sold! (id:63357)
Property Details
- Property Type
- Detached
- Bedrooms
- 3
- Bathrooms
- 1
- Half Baths
- 0
- Living Area
- 1,550 sqft
- Above Grade Area
- 1,550 sqft
- Year Built
- 1976
- Stories
- 2.0
- Status
- Active
Location & Neighborhood
Explore what's nearby 26 Coll Avenue
Explore More in Stellarton
Listing Courtesy of
Blinkhorn Real Estate Ltd.
The data relating to real estate on this website comes in part from the MLS® Reciprocity program.
REALTOR®, REALTORS®, and the REALTOR® logo are certification marks that are owned by REALTOR® Canada Inc. and licensed exclusively to The Canadian Real Estate Association (CREA). These certification marks identify real estate professionals who are members of CREA and who must abide by CREA's By-Laws, Rules, and the REALTOR® Code.
The MLS® trademark and the MLS® logo are owned by CREA and identify the quality of services provided by real estate professionals who are members of CREA.
The information contained on this site is based in whole or in part on information that is provided by members of CREA, who are responsible for its accuracy. CREA reproduces and distributes this information as a service for its members and assumes no responsibility for its accuracy.
The listing content on this website is protected by copyright and other laws. Screen scraping, database scraping, and all other forms of automated data collection are prohibited.