





Property Description
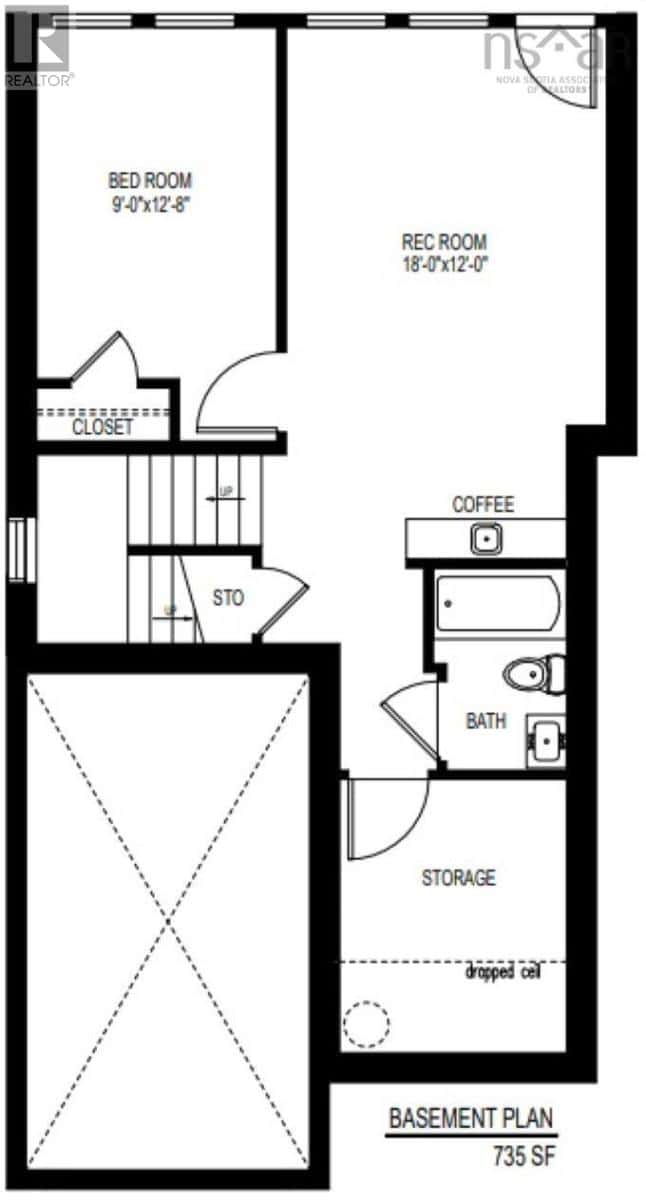
Now under construction on the extension of Brunello Boulevard, A bright foyer welcomes you to a lovely den/flex space with glass overlooking the entry. The spectacular Great Room has 9' ceilings & large windows, including a massive window in the kitchen making the most of natural light and views to the spacious backyard. A large island is ideal for gathering around to start your day, quartz countertops, a fantastic pantry, dining area and living space with access to take the entertaining outside to your deck. Convenience of a discrete powder room and access to the garage complete this level which features designer tile and hardwood floors. Provident's penthouse primary suite is a true retreat with hardwood floors, a walk-in closet and spa-like ensuite with soaker tub, double raised underlit vanity and separate shower. Two nice size bedrooms, another full bath & laundry closet, provide a super functional upper floor. A rec room, 4th bedroom & 3rd full bath create a perfect space for guests downstairs which walks out to your yard. Completed with the comfort of heat pump heating and cooling. Additional lots and layouts available. Fantastic location in Brunello where residents enjoy walking the golf course trails, access to Nine Mile River, tennis, skating, cross country skiing, events at the club house (no membership required!), and super great access to Bayers Lake and downtown Halifax. The community is growing with new services and amenities all the time. Terrific lifestyle in a beautiful new home! (id:63357)
Property Details
- Property Type
- Detached
- Bedrooms
- 4
- Bathrooms
- 4
- Half Baths
- 1
- Living Area
- 2,440 sqft
- Above Grade Area
- 2,440 sqft
- Stories
- 2.0
- Status
- Active
Location & Neighborhood
Local schools, parks, transit, and amenity information is being gathered for this listing. Check back soon for detailed neighborhood insights.
Explore More in Brunello Estates
Listing Courtesy of
PLUMB LINE REALTY INC. - 12234
The data relating to real estate on this website comes in part from the MLS® Reciprocity program.
REALTOR®, REALTORS®, and the REALTOR® logo are certification marks that are owned by REALTOR® Canada Inc. and licensed exclusively to The Canadian Real Estate Association (CREA). These certification marks identify real estate professionals who are members of CREA and who must abide by CREA's By-Laws, Rules, and the REALTOR® Code.
The MLS® trademark and the MLS® logo are owned by CREA and identify the quality of services provided by real estate professionals who are members of CREA.
The information contained on this site is based in whole or in part on information that is provided by members of CREA, who are responsible for its accuracy. CREA reproduces and distributes this information as a service for its members and assumes no responsibility for its accuracy.
The listing content on this website is protected by copyright and other laws. Screen scraping, database scraping, and all other forms of automated data collection are prohibited.