





Property Description
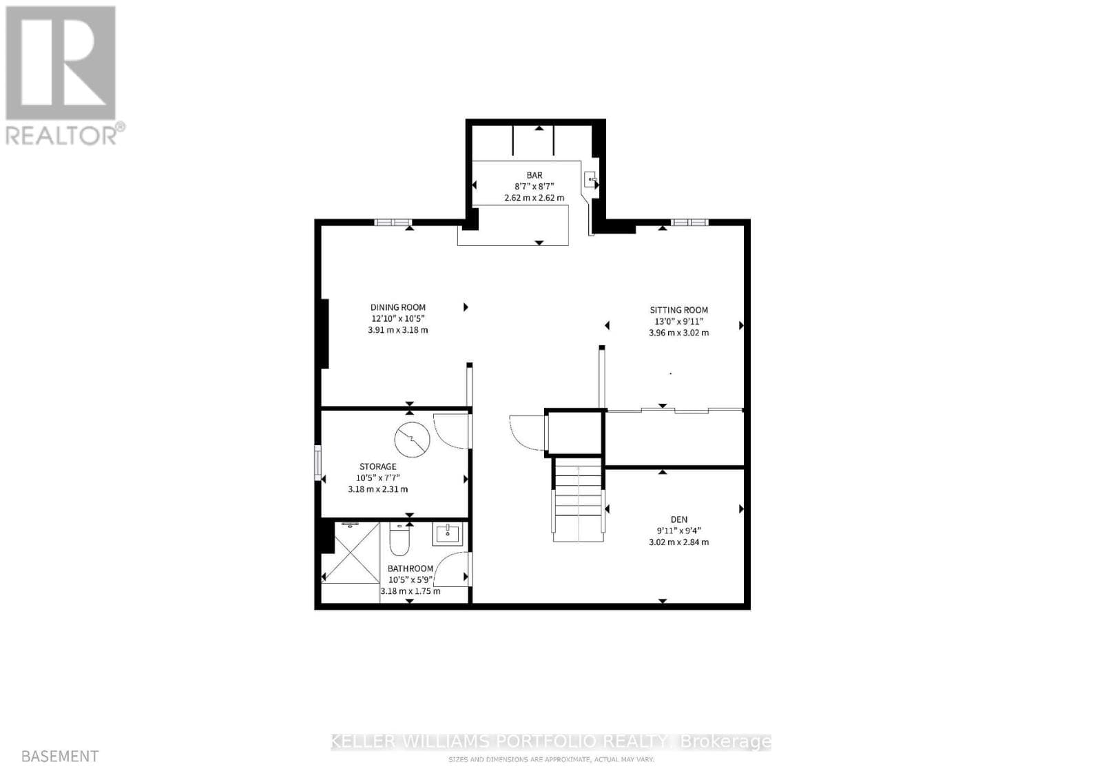
Beautiful Detached 4-Bedroom Home in Thornhill/Markham Discover this stunning 4-bedroom, 4-bathroom detached home, nestled in the highly sought-after Thornlea community. Cherished by the same family for over 35 years, this residence boasts over 2000 sq ft of above-grade living space, showcasing generous principal rooms and an updated kitchen with stone countertops and a large eat-in area. Step outside to a beautiful interlocking patio overlooking a private, mature fenced backyard perfect for entertaining or relaxing with family. Upstairs, find four spacious bedrooms, including an oversized primary suite with a 4-piece ensuite and walk-in closet. The finished basement offers endless possibilities to create your dream gym, home office, or recreation area! Conveniently located near Highways 404 and 407, shopping, parks, and top schools, this home is ideal for families seeking space and convenience. Don't miss this exceptional opportunity to make it your own! (id:63357)
Property Details
- Property Type
- Detached
- Bedrooms
- 4
- Bathrooms
- 4
- Half Baths
- 1
- Stories
- 2.0
- Status
- Active
Location & Neighborhood
Explore what's nearby 10 VALLEYVIEW ROAD
- 0.2 km
Leslie Street / 14th Lane
1941 - 0.2 km
Leslie Street / Green Lane
1928 - 0.3 km
Green Lane / Alexis Road
7344 - 0.3 km
Leslie Street / Summerdale Drive
1942 - 0.3 km
Green Lane / Fallingbrooke Court
4884
Explore More in Markham (Thornlea)
Listing Courtesy of
KELLER WILLIAMS PORTFOLIO REALTY
The data relating to real estate on this website comes in part from the MLS® Reciprocity program.
REALTOR®, REALTORS®, and the REALTOR® logo are certification marks that are owned by REALTOR® Canada Inc. and licensed exclusively to The Canadian Real Estate Association (CREA). These certification marks identify real estate professionals who are members of CREA and who must abide by CREA's By-Laws, Rules, and the REALTOR® Code.
The MLS® trademark and the MLS® logo are owned by CREA and identify the quality of services provided by real estate professionals who are members of CREA.
The information contained on this site is based in whole or in part on information that is provided by members of CREA, who are responsible for its accuracy. CREA reproduces and distributes this information as a service for its members and assumes no responsibility for its accuracy.
The listing content on this website is protected by copyright and other laws. Screen scraping, database scraping, and all other forms of automated data collection are prohibited.