





Property Description
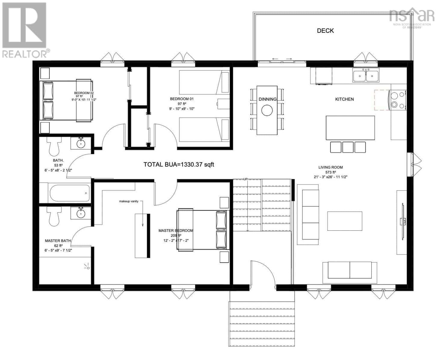
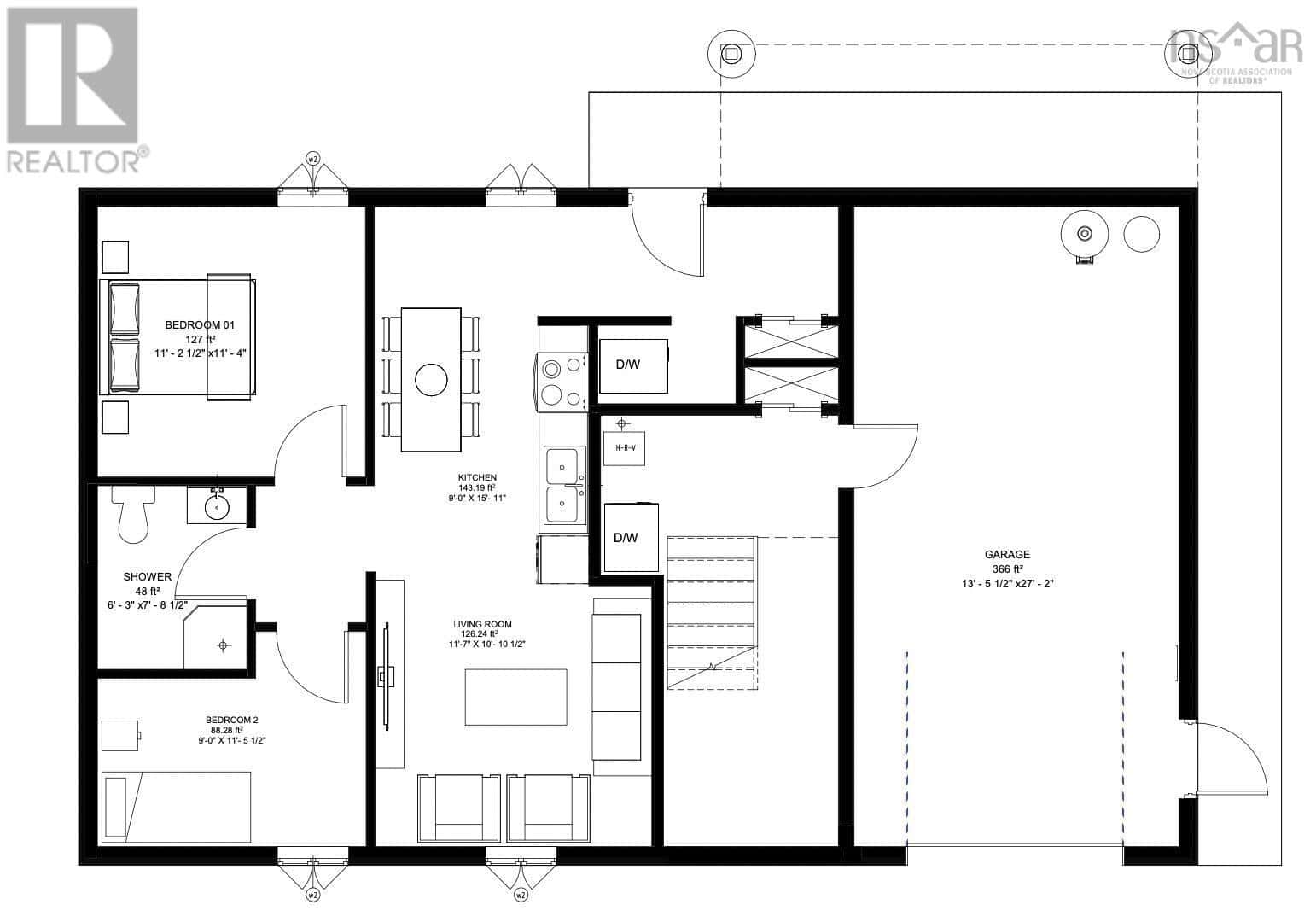
Move in for Christmas! This stunning new construction home with a legal rental suite just minutes away from everything Truro has to offer will be ready for occupancy this December. This beautifully built 5-bedroom, 3-bathroom offers exceptional quality, spacious living, and modern functionality. The main level features premium steel framing for superior durability and peace of mind, while the open-concept layout provides a bright and airy feel throughout. This level has three generously sized bedrooms and two bathrooms. Enjoy high-end finishes, sleek fixtures, and thoughtful design in every room. Not to mention, the primary bedroom is a true retreat. Boasting a generous walk-in closet and spa-inspired ensuite. A standout feature is the legal rental unit on the lower level featuring two bedrooms and one bathroom perfect for generating income or accommodating extended family. Additional highlights include 9 foot ceilings, a concrete walkway, exquisite kitchen design, two electrical panels, two hot water tanks, two HRV systems and many more! Don't miss this opportunity to own this beautifully constructed home with investment potential. Bonus: the lower level has just been issued its own civic as 157 Rocky Ridge Road. Book your private showing today! (id:63357)
Property Details
- Bedrooms
- 5
- Bathrooms
- 3
- Living Area
- 2,660 sqft
- Stories
- 1.0
- Status
- Active
Location & Neighborhood
Local schools, parks, transit, and amenity information is being gathered for this listing. Check back soon for detailed neighborhood insights.
Explore More in Truro Heights
The data relating to real estate on this website comes in part from the MLS® Reciprocity program.
REALTOR®, REALTORS®, and the REALTOR® logo are certification marks that are owned by REALTOR® Canada Inc. and licensed exclusively to The Canadian Real Estate Association (CREA). These certification marks identify real estate professionals who are members of CREA and who must abide by CREA's By-Laws, Rules, and the REALTOR® Code.
The MLS® trademark and the MLS® logo are owned by CREA and identify the quality of services provided by real estate professionals who are members of CREA.
The information contained on this site is based in whole or in part on information that is provided by members of CREA, who are responsible for its accuracy. CREA reproduces and distributes this information as a service for its members and assumes no responsibility for its accuracy.
The listing content on this website is protected by copyright and other laws. Screen scraping, database scraping, and all other forms of automated data collection are prohibited.